- 产品介绍
-
产品概述
HWYSVG电压调节型动态无功补偿装置采用电压调节型无功补偿与功率单元相结合的方式,其中固定电容支路打破传统真空开关投切的方式,根据无功补偿输出容性无功与其端电压成正比关系,利用调压器调节固定电容器组端电压可改变无功补偿装置的输出容量,同时配备相应容量的功率单元可实现容量段内的感性容性无功双向调节,从而达到精细无功补偿的目的。
型号说明
技术参数
额定电压:6.3kV、10.5kV
额定频率:50 Hz
电压采样:A、C相线电压,交流100V
电流采样: B相,交流 0~5 A (电流互感器二次侧)
调压范围:50-100%Un/40-100%Un
FC调容范围:25-100%Qn/16-100%Qn
调节档位:9
功率单元容量:500/1000kvar或根据项目适配高压SVG
采样控制:单母线单采单控、双母线双采双控
安装方式:户内或户外
保护功能:过压、欠压、过流、速断、不平衡电压、防雷、谐波超限、非电量保护等;
使用环境:环境温度-25℃ ~ +40℃、海拔 ≤1000米、空气湿度 95%(25℃时)、周围空气没有明显的粉尘、腐蚀性或可燃性气体、水蒸气或盐雾的污染;
适用场景:适用于35-220kV新建变电站母线集中补偿,能有效的提高线路的功率因数、降低线路损耗、改善供电线路电压质量。
功能特点
精细调节:通过调压器有载自动调节FC固定电容器无功输出实现系统无功补偿,同时功率单元实时对系统功率因数进行矫正,使功率因数稳定在设置范围内;
无充放电:电容器永远在线解决电容器运行中投切引起的充放电问题,调节可以随系统无功变化随时进行;
无过电压:电压调节器在调节过程中无过电压存在,可以保证电容器安全,最大限度延长其使用寿命;
抑制涌流:电容器在较低的电压水平投人,有效降低电容器合闸涌流对系统及电容器本身的冲击;
安全可靠:自动识别档位信号,调取不同档位的电流定值参数,避免保护死角;
适用性强:利用变电站原有固定补偿电容器,加装电压调节器后,即可实现自动补偿功能。
一次系统图
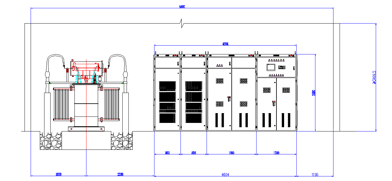
产品外形图
户内柜式3000kvar以下

户内调压器+柜式

产品选型
产品型号
额定电压(kV)
额定容量(kvar)
柜式外形尺寸
(宽mm*深mm*高mm)
HWYSVG-10-¨
10
1000
户内柜式:4700*1800*2500
户外预制仓:6000*3200*3300
2000
3000
4000
户内:调压器+柜式
户外:调压器+预制仓
5000
6000
7000
8000
9000
10000
说明:1、未注设备尺寸需根据用户现场实际情况布局;
2、客户如有特殊需求,如电压等级不同,请于我司联系,我司竭诚为您服务。
- 上一条:无

- 下一条:HWTSVG-D动静态协同型无功补偿装置



